


| 住所 | 南都留郡 道志村9012番地 |
|---|---|
| 店舗名 | 道志村サテライトオフィス(山梨県南都留郡) |
| 電話 | 0554-52-2115 |
| アクセス |
【電車&車の場合】 ・都留市駅 車30分(富士急行線) ・大月駅 車45分(JR中央本線) 【車の場合】 ・圏央自動車道>相模原IC>月夜野経由>国道413号(道志道)>DOSHI OFFICE ・中央自動車道>都留IC>県道24号>国道413号(道志道)>DOSHI OFFICE ・東名自動車道>御殿場IC>国道138号>山中湖経由>国道413号(道志道)>DOSHI OFFICE |
| 営業時間 | 全日8:30〜17:15 |
| 定休日 | 祝日・年末年始 ※土日の利用を希望する方は、事前に道志村役場ふるさと振興課までご連絡ください。 道志村役場ふるさと振興課(TEL: 0554-52-2115) |
| 座席 | 1 |
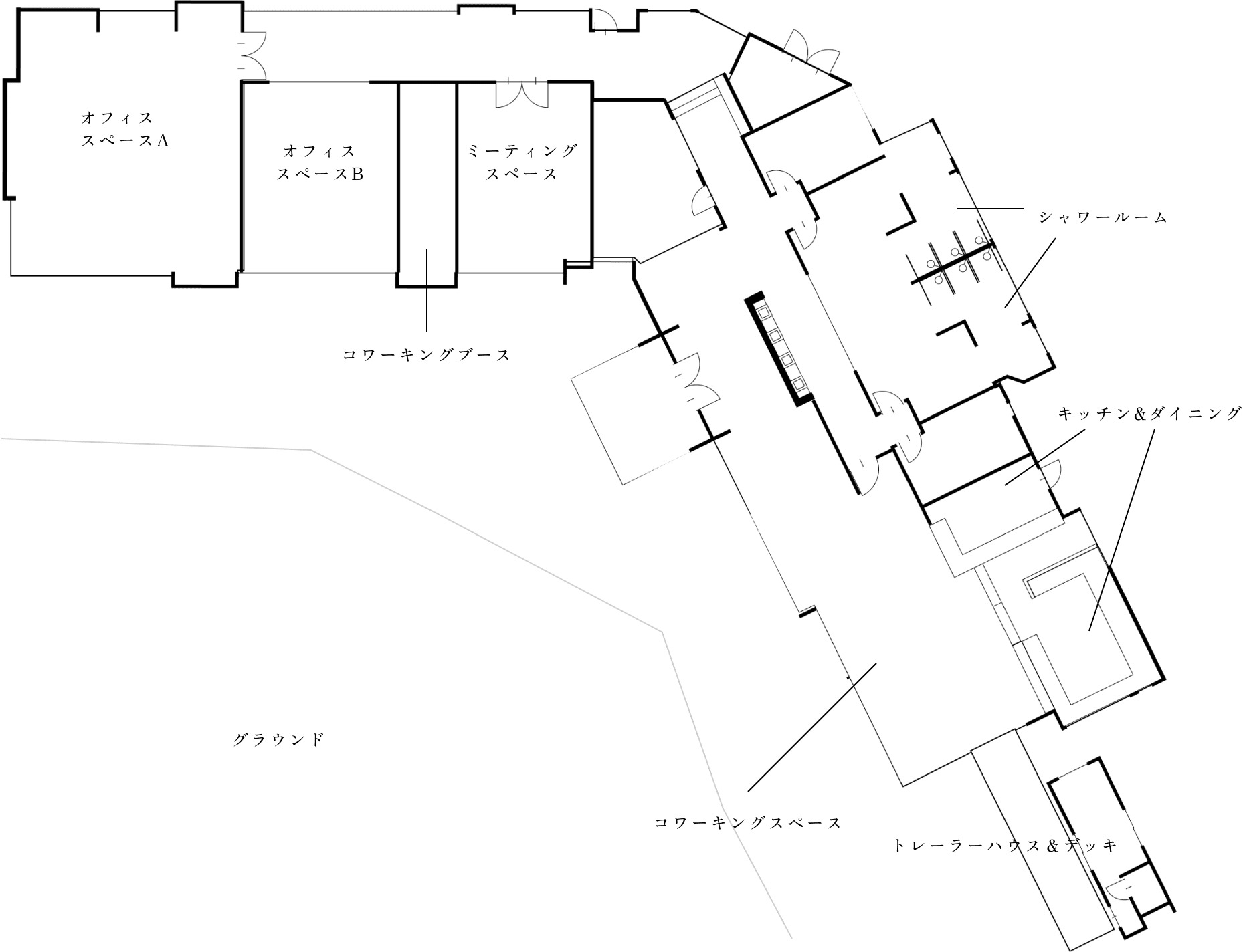
| 店舗タイプ | コワーキングスペース |